臺北市政府於114/12/30(二)上午9點正式啟用社宅統一登記平台!115年2月底前完成登記者,1月、2月會各抽出100名,送超商百元禮卷喔!🎁(每人限領1次)

Logo 統一登記平台

空間規劃與租金

房型

A.廣慈園區社宅規劃1房、2房、3房,三種房型。

設計與家具設備如下:

房型

臥室

廚房

陽台

其他

1房型

固定式衣櫃

抽油煙機
雙口檯面式瓦斯爐
單口電陶爐(一房型)
電陶爐
櫥櫃

熱水器
曬衣架

鞋櫃
衛浴設備

2房型

3房型

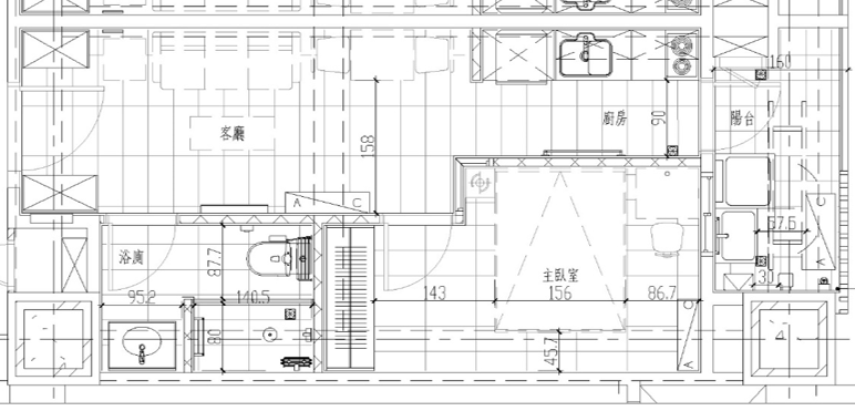
B.各房型空間平面圖(家具擺放位置僅為示意)

一房型格局,D基地219戶、E基地213戶

各房型空間平面圖 各房型空間平面圖

二房型格局,D基地203戶、E基地209戶

各房型空間平面圖 各房型空間平面圖

三房型格局,D基地100戶、E基地100戶

各房型空間平面圖 各房型空間平面圖
社宅租金說明

社宅租金之定價係連同管理費統一計收,惟租賃期限 (每3年)屆滿續租時,臺北市政府都市發展局(下稱本局)得依規定檢討是否調整租金。

A.分級補貼對象及金額

  1. 對象為社會住宅承租戶且家庭年所得低於本市40%分位點家庭之平均所得(111年度應低於146萬元),並依家庭總收入平均每人每月所得計算所得級距,再由所得級距推算實付租金。
  2. 申請人家庭年所得大於本市40%分位點家庭之平均所得,或所得級距非屬分級標準各階者不補貼,仍以定價計收租金(詳如廣慈園區社宅租金分級標準)。
  3. 首年依申請人於申請日所檢附之家庭成員最近一年度綜合所得稅各類所得資料清單計算分級租金補貼額度。
  4. 有效租期內若有租金調整需求且符合以下事項得申請調整租金:
    • a.家庭年所得變動:以家庭年所得變動為由申請調整者,1年以1次為限。
    • b.家庭成員變動:限因出生、死亡、結(離)婚、收(出)養等事由,致家庭成員變動者,始得申請。
  5. 青年創新回饋戶依其所得情形及承租房型收取租金,計算方式如下:
    • a.團員(非家庭成員)分別承租不同戶:分別依團員各人家庭年所得及人口數,計算分級標準。
    • b.團員(非家庭成員)共同承租同一戶:個別認定申請人與團員之所得級距,以較低階級別認定分級租金補貼額度。

B.保證金

  1. 依本計畫入住者,簽約時繳交相當2個月租金之保證金(承租戶所繳保證金於租期內不因租金分級調整而辦理差額保證金退款或補繳事宜)。
  2. 租約屆期後續租時,如次一租期實付租金有所異動,則核退或補繳當期保證金差額。

廣慈園區社宅租金分級標準

所得級距表

級別

分級標準

家庭年所得40%分位點以下
(家庭年總收入146萬元以下)

第一階

未達最低生活費收入標準1倍
(家庭總收入平均每人每月18,682元以下)

第二階

未達最低生活費收入標準1.5倍
(家庭總收入平均每人每月18,683元至28,023元)

第三階

未達最低生活費收入標準2.5倍
(家庭總收入平均每人每月28,024元至46,705元)

不補貼(定價租金)

家庭年所得40%~50%分位點
(家庭年所得146萬元至167萬元)
或超過最低生活費收入標準2.5~3.5倍
(家庭總收入平均每人每月46,706元至65,387元)

租期說明

每期租期最長3年,承租人於租期屆滿時仍符合承租資格者,且經檢核委員檢核通過後得申請續租;租賃及續租期限合計最長不得超過6年。